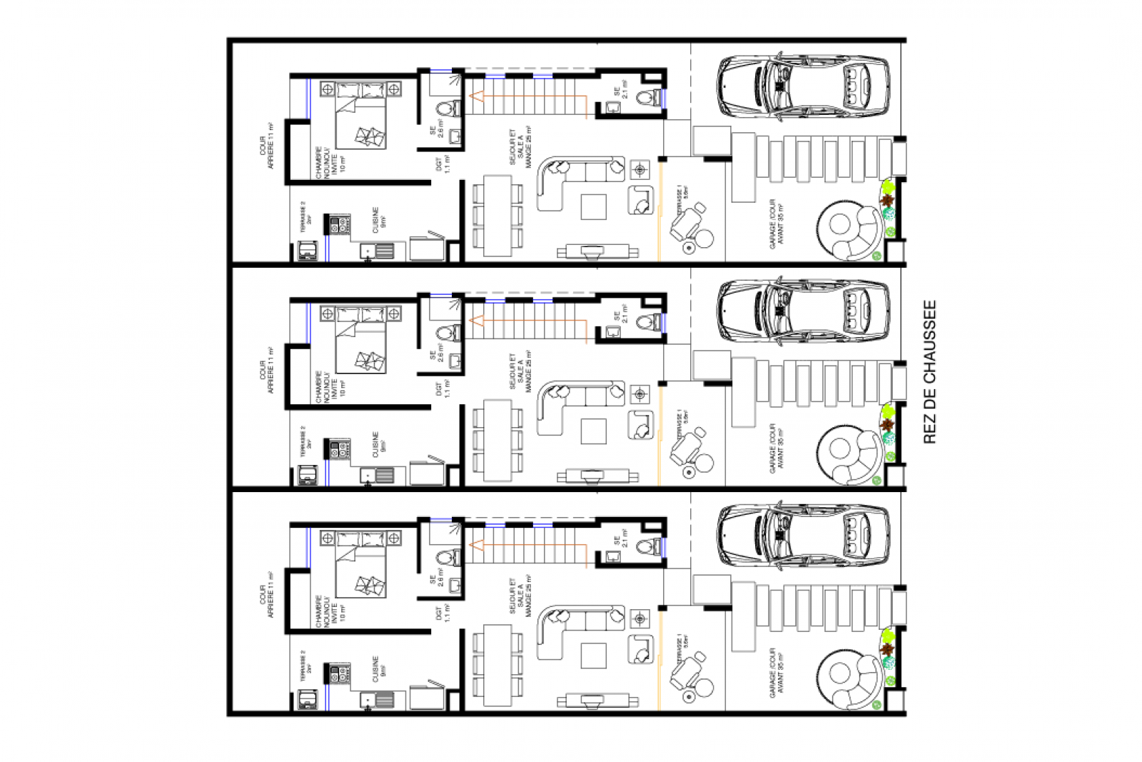
Modèle pour projet d'ivestissement

C'est une esquisse de plan et non une maison en vente

CARAIBES
type 3 duplex de 4 pièces

Je suis intéressé :
  • (+225) 05 75 83 30 30

Les coûts de construction au gros œuvre que nous proposons ne sont pas définitifs. Ils peuvent être révisés après une visite d’expertise de votre terrain. Le coût final tiendra compte de plusieurs facteurs, tels que :

  • L'accès au terrain
  • Les moyens de transport nécessaires
  • La viabilité de la zone
  • Le relief du terrain
  • La nature du sol

Ces éléments influencent directement les coûts liés aux travaux de fondation et aux infrastructures nécessaires pour la construction.

Les coûts de finition, quant à eux, prennent uniquement en compte les matériaux choisis pour les finitions (revêtements, peintures, sanitaires, etc.). Un mois avant le début des travaux de finition, les coûts de la main-d'œuvre ainsi que les frais de gestion du chantier vous seront facturés séparément, afin de vous offrir une transparence complète sur les dépenses liées à votre projet.


Voir d'autres modèles pour projets d'ivestissements