Modèle pour particulier

C'est une esquisse de plan et non une maison en vente

PYRAMIDE
type duplex 7 pièces

34 644 972 FCFA 52 826 €

Je suis intéressé :
  • (+225) 07 77 43 43 43
Gros oeuvre Finition total
34 644 972 FCFA Eco. 17 004 000 FCFA 51 648 972 FCFA
Stand. 22 672 000 FCFA 57 316 972 FCFA

Gros oeuvre (€) Finition (€) total (€)
52 826 € Eco. 25 927 € 78 754 €
Stand. 34 570 € 87 396 €


Description

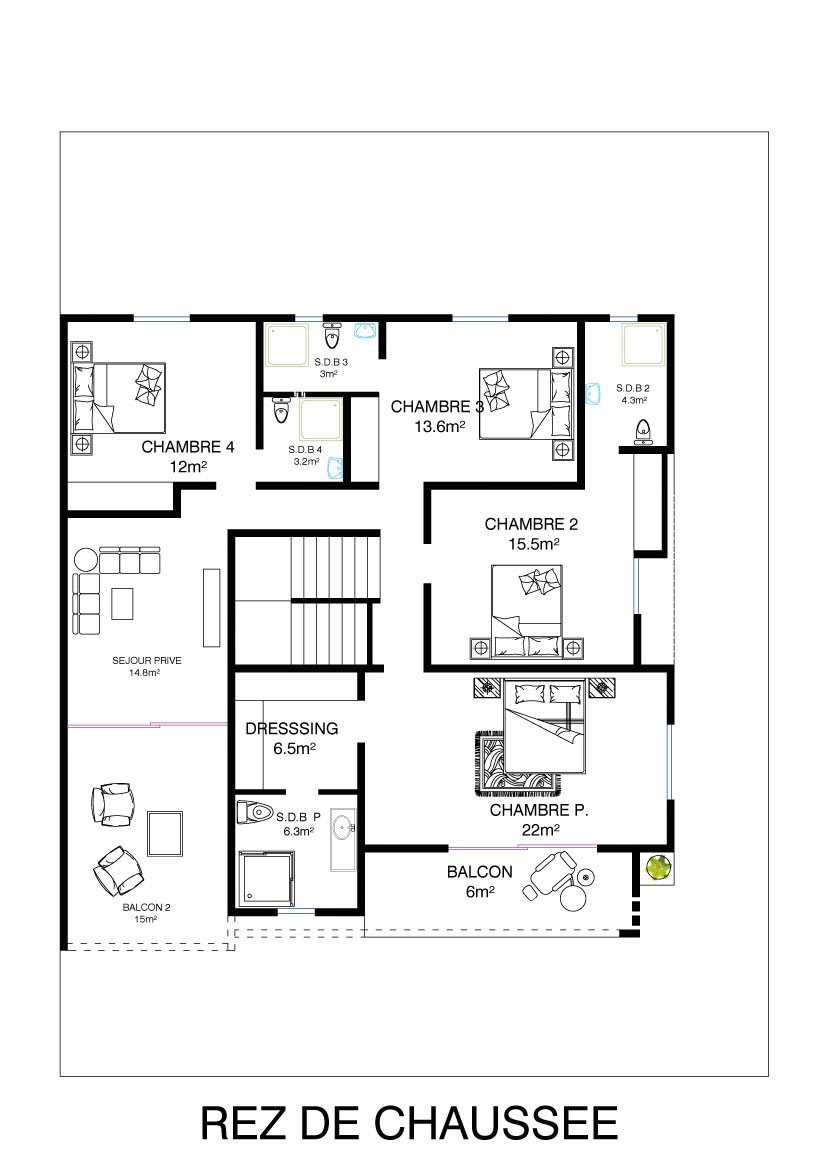
REZ DE CHAUSEE
JARDIN35m²
GARAGE37.4m²
TERRASSE 312m²
SEJOUR35m²
SALLE A MANGER 16.2m²
CUISINE10.5m²
TERASSE 15m²
CHAMBRE NOUNOU11.3m²
S D B 13m²
DRESSING2.3m²
COUR ARRIERE55m²
COUR 26m²
ETAGE
CHAMBRE PRINCIPALE22m²
BALCON6m²
DRESSING6.5m²
S D B P6.3m²
CHAMBRE 215.5m²
S D B 24.3m²
CHAMBRE 313.6m²
S D B 33m²
CHAMBRE 412m²
S D B 43.2m²
SEJOUR  PRIVE14m²
BALCON 215m²




Les coûts de construction au gros œuvre que nous proposons ne sont pas définitifs. Ils peuvent être révisés après une visite d’expertise de votre terrain. Le coût final tiendra compte de plusieurs facteurs, tels que :

  • L'accès au terrain
  • Les moyens de transport nécessaires
  • La viabilité de la zone
  • Le relief du terrain
  • La nature du sol

Ces éléments influencent directement les coûts liés aux travaux de fondation et aux infrastructures nécessaires pour la construction.

Les coûts de finition, quant à eux, prennent uniquement en compte les matériaux choisis pour les finitions (revêtements, peintures, sanitaires, etc.). Un mois avant le début des travaux de finition, les coûts de la main-d'œuvre ainsi que les frais de gestion du chantier vous seront facturés séparément, afin de vous offrir une transparence complète sur les dépenses liées à votre projet.


Description

REZ DE CHAUSEE
JARDIN35m²
GARAGE37.4m²
TERRASSE 312m²
SEJOUR35m²
SALLE A MANGER 16.2m²
CUISINE10.5m²
TERASSE 15m²
CHAMBRE NOUNOU11.3m²
S D B 13m²
DRESSING2.3m²
COUR ARRIERE55m²
COUR 26m²
ETAGE
CHAMBRE PRINCIPALE22m²
BALCON6m²
DRESSING6.5m²
S D B P6.3m²
CHAMBRE 215.5m²
S D B 24.3m²
CHAMBRE 313.6m²
S D B 33m²
CHAMBRE 412m²
S D B 43.2m²
SEJOUR  PRIVE14m²
BALCON 215m²

Voir d'autres modèles