Modèle pour particulier

C'est une esquisse de plan et non une maison en vente

OASIS DU SOLEIL 3
type duplex 6 pièces

49 700 000 FCFA 75 782 €

Je suis intéressé :
  • (+225) 07 77 43 43 43
Gros oeuvre Finition total
49 700 000 FCFA Eco. 21 466 000 FCFA 71 166 000 FCFA
Stand. 28 620 000 FCFA 78 320 000 FCFA

Gros oeuvre (€) Finition (€) total (€)
75 782 € Eco. 32 731 € 108 513 €
Stand. 43 639 € 119 421 €


Description

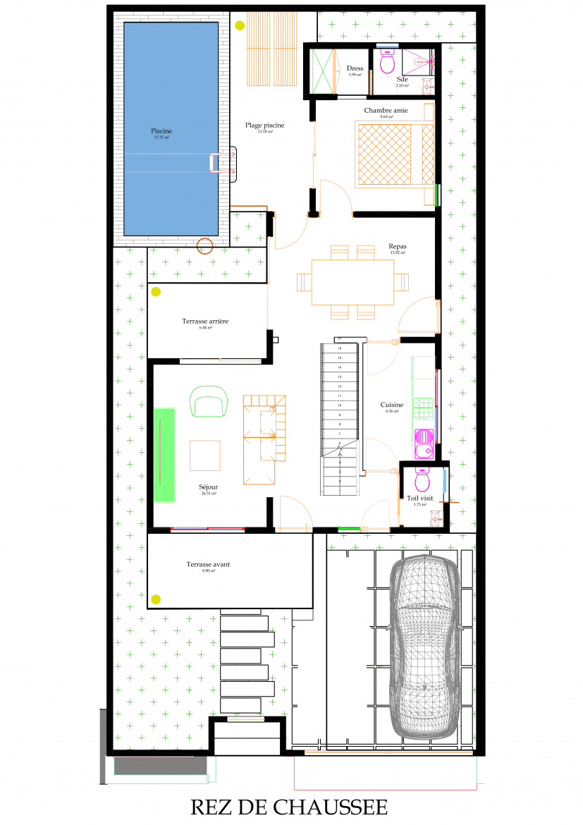
                                                                                  TABLEAU DE SURFACE REZ DE CHAUSSE

DESIGNATIONSURFACE
SEJOUR 26.51 m²
SALLE A MANGER13.92 m²
CUISINE 6.36 m²
CHAMBRE AMI9.60 m²
SALE D'EAU CHAMBRE AMI2.10 m²
DRESSING CHAMBRE AMI1.99 m²
TERRASSE AVANT8.90 m²
TERRASSE ARRIERE6.44 m²
PLACE PISCINE 11.18 m²
TERRASSE SEJOUR23.19 m²
PISCINE 11.37 m²
TOILETTE VISITEUR1.75 m²
JARDIN 46.66 m²
GARAGE23.21 m²

                                                                                  TABLEAU  SURFACE ETAGE

DESIGNATIONSURFACE
SEJOUR 12.99 m²
CHAMBRE 23.07 m²
SALE D'EAU CH 21.33 m²
DRESSING CHAMBRE 29.81 m²
CHAMBRE 33.86 m²
SALE D'EAU CHAMBRE 322.20 m²
CHAMBRE PRINCIPALE8.90 m²
SALLE D'EAU CH P8.37 m²
DRESSING CH P 4.70 m²
BALCON CH P6.97 m²
BALCON 15.65 m²
DEGAGEMENT13.03 m²
TERRASSE ACCESSIBLE 72.93 m²
DEGAGEMENT TOITURE TERRASSE13.03 m²
SALLE D'EAU3.80 m²




Les coûts de construction au gros œuvre que nous proposons ne sont pas définitifs. Ils peuvent être révisés après une visite d’expertise de votre terrain. Le coût final tiendra compte de plusieurs facteurs, tels que :

  • L'accès au terrain
  • Les moyens de transport nécessaires
  • La viabilité de la zone
  • Le relief du terrain
  • La nature du sol

Ces éléments influencent directement les coûts liés aux travaux de fondation et aux infrastructures nécessaires pour la construction.

Les coûts de finition, quant à eux, prennent uniquement en compte les matériaux choisis pour les finitions (revêtements, peintures, sanitaires, etc.). Un mois avant le début des travaux de finition, les coûts de la main-d'œuvre ainsi que les frais de gestion du chantier vous seront facturés séparément, afin de vous offrir une transparence complète sur les dépenses liées à votre projet.


Description

                                                                                  TABLEAU DE SURFACE REZ DE CHAUSSE

DESIGNATIONSURFACE
SEJOUR 26.51 m²
SALLE A MANGER13.92 m²
CUISINE 6.36 m²
CHAMBRE AMI9.60 m²
SALE D'EAU CHAMBRE AMI2.10 m²
DRESSING CHAMBRE AMI1.99 m²
TERRASSE AVANT8.90 m²
TERRASSE ARRIERE6.44 m²
PLACE PISCINE 11.18 m²
TERRASSE SEJOUR23.19 m²
PISCINE 11.37 m²
TOILETTE VISITEUR1.75 m²
JARDIN 46.66 m²
GARAGE23.21 m²

                                                                                  TABLEAU  SURFACE ETAGE

DESIGNATIONSURFACE
SEJOUR 12.99 m²
CHAMBRE 23.07 m²
SALE D'EAU CH 21.33 m²
DRESSING CHAMBRE 29.81 m²
CHAMBRE 33.86 m²
SALE D'EAU CHAMBRE 322.20 m²
CHAMBRE PRINCIPALE8.90 m²
SALLE D'EAU CH P8.37 m²
DRESSING CH P 4.70 m²
BALCON CH P6.97 m²
BALCON 15.65 m²
DEGAGEMENT13.03 m²
TERRASSE ACCESSIBLE 72.93 m²
DEGAGEMENT TOITURE TERRASSE13.03 m²
SALLE D'EAU3.80 m²

Voir d'autres modèles