Modèle pour particulier

C'est une esquisse de plan et non une maison en vente

BEAU SOLEIL
type duplex 6 pièces

35 600 200 FCFA 54 283 €

Je suis intéressé :
  • (+225) 07 77 43 43 43
Gros oeuvre Finition total
35 600 200 FCFA Eco. 16 900 000 FCFA 52 500 200 FCFA
Stand. 21 784 000 FCFA 57 384 200 FCFA

Gros oeuvre (€) Finition (€) total (€)
54 283 € Eco. 25 769 € 80 052 €
Stand. 33 216 € 87 499 €


Description

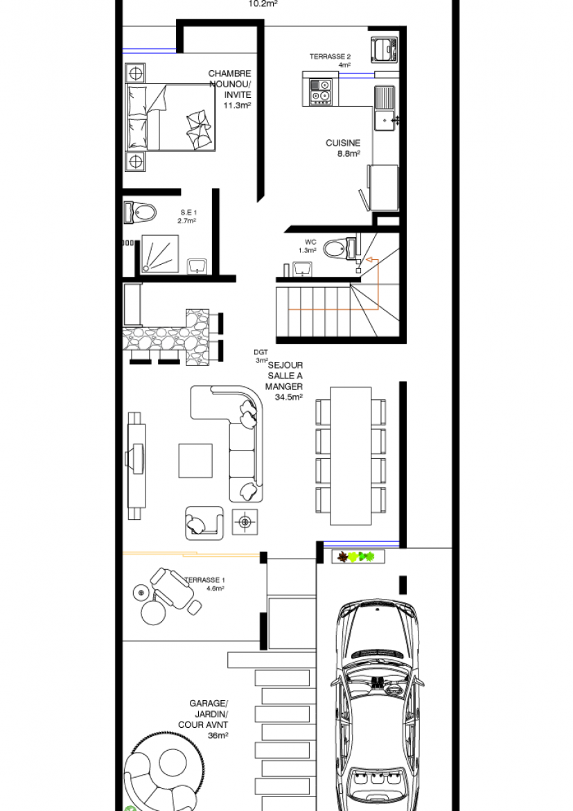
                                                                                  TABLEAU DE SURFACE REZ DE CHAUSSE

DESIGNATIONSURFACE
SEJOUR + SALLE A MANGER34.50 m²
CUISINE8.8 m²
CHAMBRE NOUNOU / INVITE11.30 m²
SDE CHAMBRE N/INVITE2.7 m²
TERRASSE 14.6 m²
TERRASSE 24 m²
COUR ARRIERE10.2 m²
COUR AVAVNT17.80 m²
DEGAGEMENT3 m²
GARAGE19.72 m²

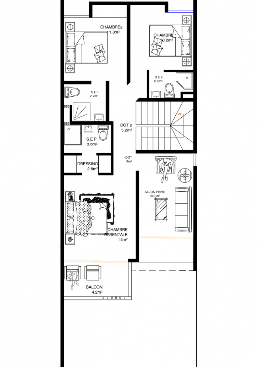
                                                                                  TABLEAU DE SURFACE ETAGE

DESIGNATIONSURFACE
CHAMBRE 110.2 m²
SALLE D'EAU CHAMBRE 12.7 m²
CHAMBRE 211.3 m²
SALLE D'EAU CHAMBRE 22.7 m²
CHAMBRE PRINCIPALE14 m²
SALLE D'EAU CHAMBRE PRINCIPALE3.6 m²
DRESSING CHAMBRE PRINCIPALE1.9 m²
BALCON CHAMBRE PRINCIPALE4.2 m²




Les coûts de construction au gros œuvre que nous proposons ne sont pas définitifs. Ils peuvent être révisés après une visite d’expertise de votre terrain. Le coût final tiendra compte de plusieurs facteurs, tels que :

  • L'accès au terrain
  • Les moyens de transport nécessaires
  • La viabilité de la zone
  • Le relief du terrain
  • La nature du sol

Ces éléments influencent directement les coûts liés aux travaux de fondation et aux infrastructures nécessaires pour la construction.

Les coûts de finition, quant à eux, prennent uniquement en compte les matériaux choisis pour les finitions (revêtements, peintures, sanitaires, etc.). Un mois avant le début des travaux de finition, les coûts de la main-d'œuvre ainsi que les frais de gestion du chantier vous seront facturés séparément, afin de vous offrir une transparence complète sur les dépenses liées à votre projet.


Description

                                                                                  TABLEAU DE SURFACE REZ DE CHAUSSE

DESIGNATIONSURFACE
SEJOUR + SALLE A MANGER34.50 m²
CUISINE8.8 m²
CHAMBRE NOUNOU / INVITE11.30 m²
SDE CHAMBRE N/INVITE2.7 m²
TERRASSE 14.6 m²
TERRASSE 24 m²
COUR ARRIERE10.2 m²
COUR AVAVNT17.80 m²
DEGAGEMENT3 m²
GARAGE19.72 m²

                                                                                  TABLEAU DE SURFACE ETAGE

DESIGNATIONSURFACE
CHAMBRE 110.2 m²
SALLE D'EAU CHAMBRE 12.7 m²
CHAMBRE 211.3 m²
SALLE D'EAU CHAMBRE 22.7 m²
CHAMBRE PRINCIPALE14 m²
SALLE D'EAU CHAMBRE PRINCIPALE3.6 m²
DRESSING CHAMBRE PRINCIPALE1.9 m²
BALCON CHAMBRE PRINCIPALE4.2 m²

Voir d'autres modèles