Modèle pour particulier

C'est une esquisse de plan et non une maison en vente

CARAIBES
type duplex 4 pièces

27 500 000 FCFA 41 932 €

Je suis intéressé :
  • (+225) 07 77 43 43 43
Gros oeuvre Finition total
27 500 000 FCFA Eco. 13 650 000 FCFA 41 150 000 FCFA
Stand. 15 960 000 FCFA 43 460 000 FCFA

Gros oeuvre (€) Finition (€) total (€)
41 932 € Eco. 20 813 € 62 745 €
Stand. 24 336 € 66 267 €


Description

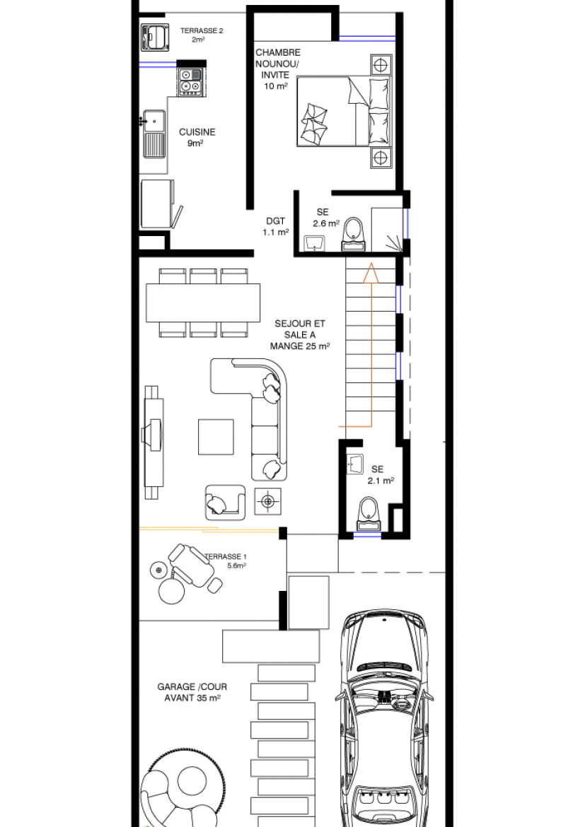
                                                                                  TABLEAU DE SURFACE REZ DE CHAUSSE

DESIGNATIONSURFACE
SEJOUR + SALLE A MANGER25 m²
CUISINE9 m²
CHAMBRE NOUNOU / INVITE10 m²
SDE CHAMBRE NOUNOU2.6 m²
TOILETTE VISITEUR2.1 m²
TERRASSE 15.6 m²
TERRASSE 22 m²
COUR ARRIERE10.95 m²
COUR AVAVNT18.17 m²
DEGAGEMENT1.1 m²
GARAGE18.78 m²

                                                                                  TABLEAU DE SURFACE ETAGE

DESIGNATIONSURFACE
CHAMBRE 210.2 m²
SALLE D'EAU CHAMBRE 22.7 m²
CHAMBRE PRINCIPALE11.3 m²
SALLE D'EAU CHAMBRE PRINCIPALE2.7 m²
BALCON CHAMBRE PRINCIPALE14 m²




Les coûts de construction au gros œuvre que nous proposons ne sont pas définitifs. Ils peuvent être révisés après une visite d’expertise de votre terrain. Le coût final tiendra compte de plusieurs facteurs, tels que :

  • L'accès au terrain
  • Les moyens de transport nécessaires
  • La viabilité de la zone
  • Le relief du terrain
  • La nature du sol

Ces éléments influencent directement les coûts liés aux travaux de fondation et aux infrastructures nécessaires pour la construction.

Les coûts de finition, quant à eux, prennent uniquement en compte les matériaux choisis pour les finitions (revêtements, peintures, sanitaires, etc.). Un mois avant le début des travaux de finition, les coûts de la main-d'œuvre ainsi que les frais de gestion du chantier vous seront facturés séparément, afin de vous offrir une transparence complète sur les dépenses liées à votre projet.


Description

                                                                                  TABLEAU DE SURFACE REZ DE CHAUSSE

DESIGNATIONSURFACE
SEJOUR + SALLE A MANGER25 m²
CUISINE9 m²
CHAMBRE NOUNOU / INVITE10 m²
SDE CHAMBRE NOUNOU2.6 m²
TOILETTE VISITEUR2.1 m²
TERRASSE 15.6 m²
TERRASSE 22 m²
COUR ARRIERE10.95 m²
COUR AVAVNT18.17 m²
DEGAGEMENT1.1 m²
GARAGE18.78 m²

                                                                                  TABLEAU DE SURFACE ETAGE

DESIGNATIONSURFACE
CHAMBRE 210.2 m²
SALLE D'EAU CHAMBRE 22.7 m²
CHAMBRE PRINCIPALE11.3 m²
SALLE D'EAU CHAMBRE PRINCIPALE2.7 m²
BALCON CHAMBRE PRINCIPALE14 m²

Voir d'autres modèles