Modèle pour particulier

C'est une esquisse de plan et non une maison en vente

OPALINE ROSEE
type Triplex 6 pièces

28 617 000 FCFA 43 635 €

Je suis intéressé :
  • (+225) 07 77 43 43 43
Gros oeuvre Finition total
28 617 000 FCFA Eco. 15 820 000 FCFA 44 437 000 FCFA
Stand. 19 480 000 FCFA 48 097 000 FCFA

Gros oeuvre (€) Finition (€) total (€)
43 635 € Eco. 24 122 € 67 757 €
Stand. 29 703 € 73 338 €


Description

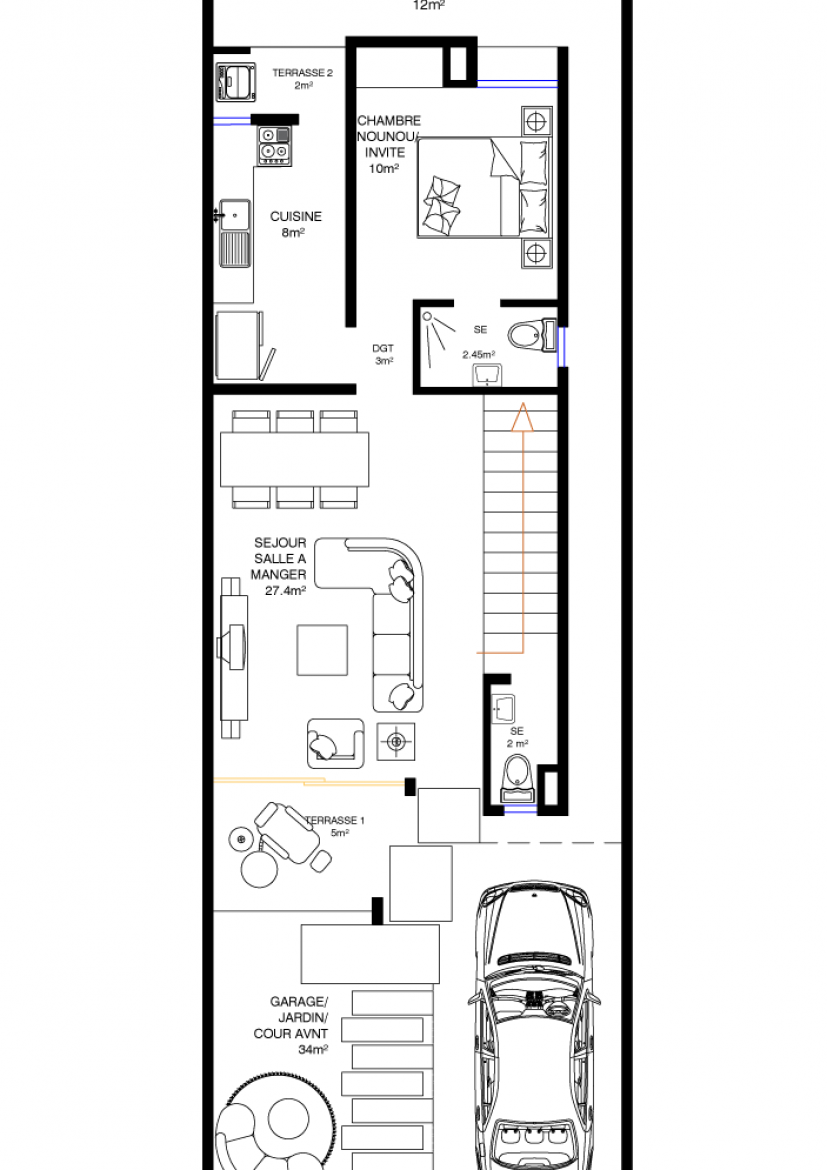
                                                                                  TABLEAU DE SURFACE REZ DE CHAUSSE

DESIGNATIONSURFACE
SEJOUR + SALLE A MANGER27.4 m²
CUISINE8 m²
CHAMBRE NOUNOU / INVITE10 m²
SDE CHAMBRE NOUNOU2.45 m²
TOILETTE VISITEUR2 m²
TERRASSE 15 m²
TERRASSE 22 m²
COUR ARRIERE12 m²
COUR AVAVNT18.17 m²
DEGAGEMENT3 m²
GARAGE18.78 m²

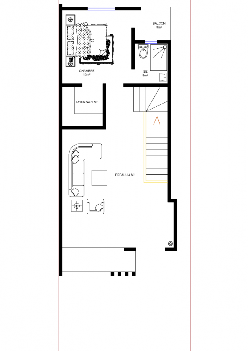
                                                                                  TABLEAU DE SURFACE ETAGE 1

DESIGNATIONSURFACE
CHAMBRE 29.5 m²
SALLE D'EAU CHAMBRE 24 m²
CHAMBRE PRINCIPALE17.2 m²
SALLE D'EAU CHAMBRE PRINCIPALE5 m²
BALCON CHAMBRE PRINCIPALE6 m²
ESPACE ESCALIER12 m²

                                                                                  TABLEAU DE SURFACE ETAGE 2

DESIGNATIONSURFACE
CHAMBRE 12  m²
SALLE D'EAU3 m²
BALCON3 m²




Les coûts de construction au gros œuvre que nous proposons ne sont pas définitifs. Ils peuvent être révisés après une visite d’expertise de votre terrain. Le coût final tiendra compte de plusieurs facteurs, tels que :

  • L'accès au terrain
  • Les moyens de transport nécessaires
  • La viabilité de la zone
  • Le relief du terrain
  • La nature du sol

Ces éléments influencent directement les coûts liés aux travaux de fondation et aux infrastructures nécessaires pour la construction.

Les coûts de finition, quant à eux, prennent uniquement en compte les matériaux choisis pour les finitions (revêtements, peintures, sanitaires, etc.). Un mois avant le début des travaux de finition, les coûts de la main-d'œuvre ainsi que les frais de gestion du chantier vous seront facturés séparément, afin de vous offrir une transparence complète sur les dépenses liées à votre projet.


Description

                                                                                  TABLEAU DE SURFACE REZ DE CHAUSSE

DESIGNATIONSURFACE
SEJOUR + SALLE A MANGER27.4 m²
CUISINE8 m²
CHAMBRE NOUNOU / INVITE10 m²
SDE CHAMBRE NOUNOU2.45 m²
TOILETTE VISITEUR2 m²
TERRASSE 15 m²
TERRASSE 22 m²
COUR ARRIERE12 m²
COUR AVAVNT18.17 m²
DEGAGEMENT3 m²
GARAGE18.78 m²

                                                                                  TABLEAU DE SURFACE ETAGE 1

DESIGNATIONSURFACE
CHAMBRE 29.5 m²
SALLE D'EAU CHAMBRE 24 m²
CHAMBRE PRINCIPALE17.2 m²
SALLE D'EAU CHAMBRE PRINCIPALE5 m²
BALCON CHAMBRE PRINCIPALE6 m²
ESPACE ESCALIER12 m²

                                                                                  TABLEAU DE SURFACE ETAGE 2

DESIGNATIONSURFACE
CHAMBRE 12  m²
SALLE D'EAU3 m²
BALCON3 m²

Voir d'autres modèles