Modèle pour particulier

C'est une esquisse de plan et non une maison en vente

TROPICA COCOTERA
type Triplex 6 pièces

32 898 000 FCFA 50 162 €

Je suis intéressé :
  • (+225) 07 77 43 43 43
Gros oeuvre Finition total
32 898 000 FCFA Eco. 15 320 000 FCFA 48 218 000 FCFA
Stand. 19 740 000 FCFA 52 638 000 FCFA

Gros oeuvre (€) Finition (€) total (€)
50 162 € Eco. 23 360 € 73 522 €
Stand. 30 099 € 80 262 €


Description

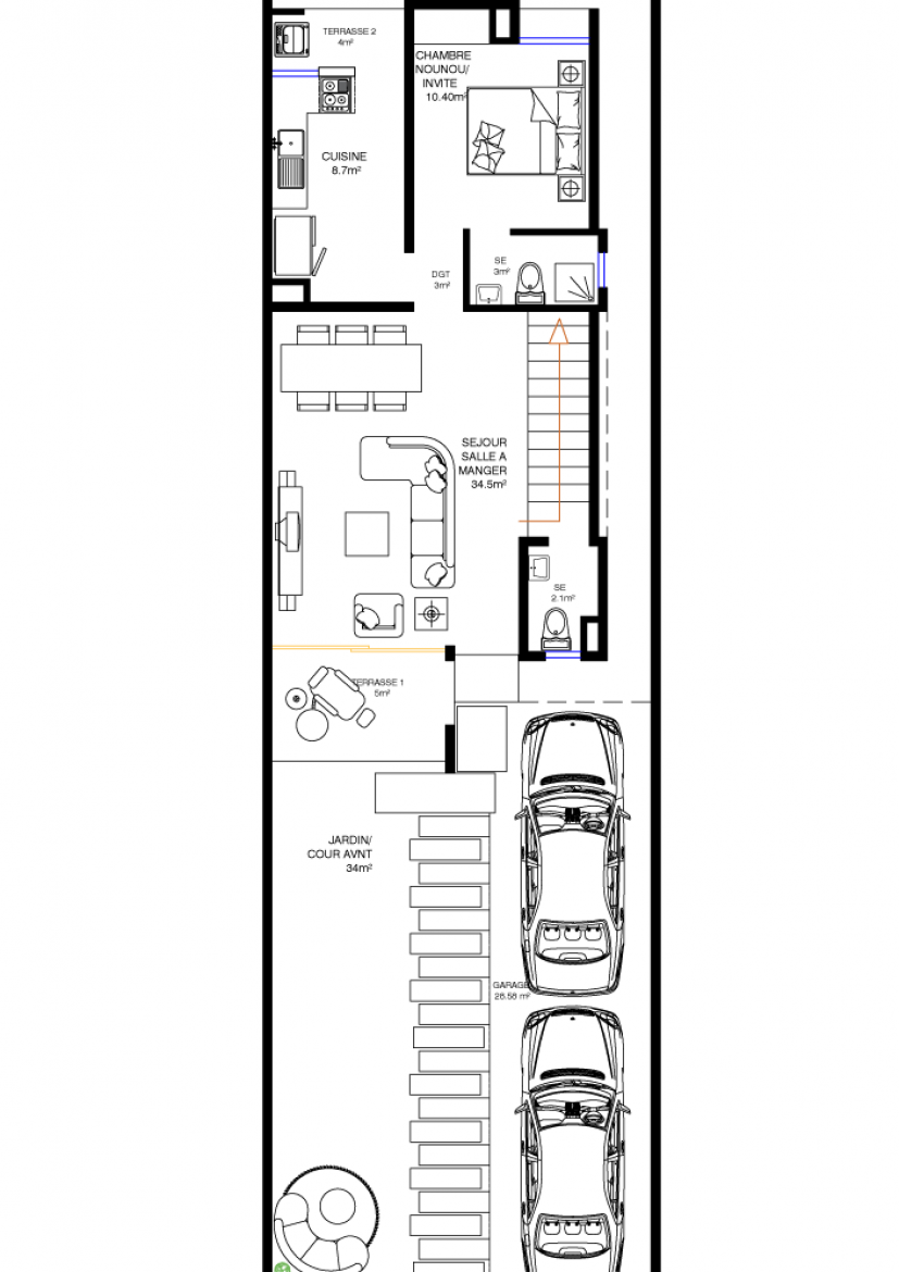
                                                                                  TABLEAU DE SURFACE REZ DE CHAUSSE

DESIGNATIONSURFACE
SEJOUR + SALLE A MANGER34.5 m²
CUISINE8.7 m²
CHAMBRE NOUNOU / INVITE10.4 m²
SDE CHAMBRE NOUNOU3 m²
TOILETTE VISITEUR2.1 m²
TERRASSE 15 m²
COUR ARRIERE10.2 m²
COUR AVAVNT34 m²
DEGAGEMENT1.1 m²
GARAGE28.58 m²

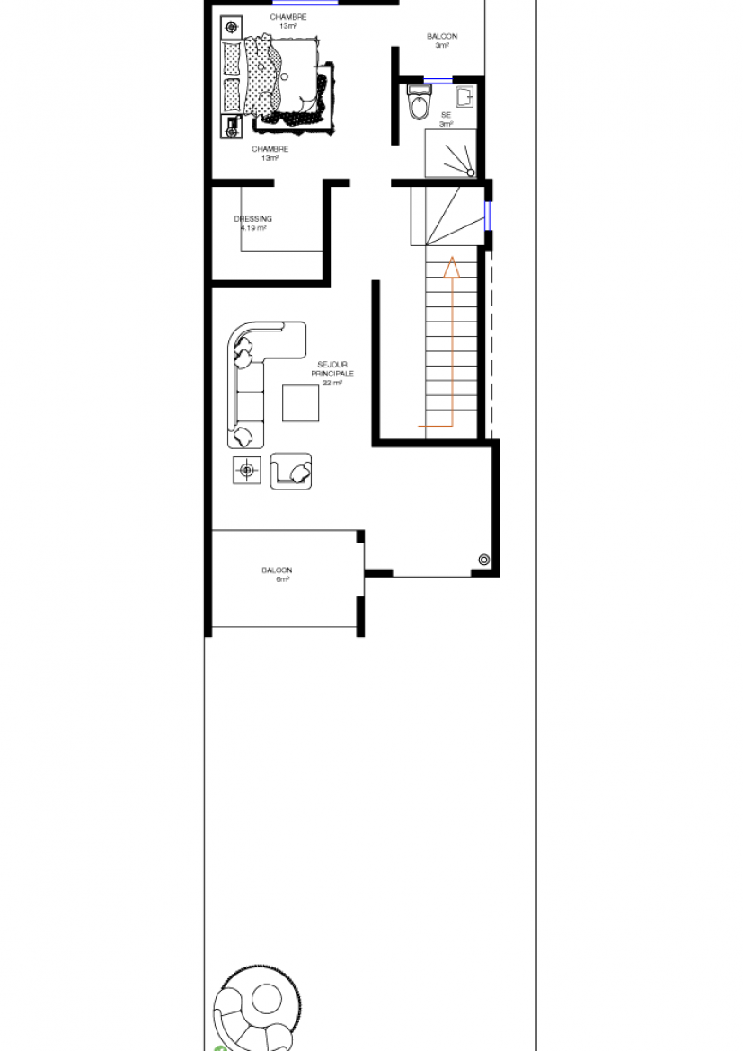
                                                                                  TABLEAU DE SURFACE ETAGE 1

DESIGNATIONSURFACE
CHAMBRE 29.43 m²
SALLE D'EAU CHAMBRE 25 m²
CHAMBRE PRINCIPALE19 m²
SALLE D'EAU CHAMBRE PRINCIPALE6 m²
DRESSING CH P6 m²
BALCON CHAMBRE PRINCIPALE5 m²

                                                                                    TABLEAU DE SURFACE TOITURE TERRASSE

DESIGNATIONSURFACE
CHAMBRE 13 m²
SDE CHAMBRE3 m²
DRESSING CH4.19 m²
BALCON CH3 m²
SEJOUR PRIVE22 m²
BALCON SEJOUR6 m²




Les coûts de construction au gros œuvre que nous proposons ne sont pas définitifs. Ils peuvent être révisés après une visite d’expertise de votre terrain. Le coût final tiendra compte de plusieurs facteurs, tels que :

  • L'accès au terrain
  • Les moyens de transport nécessaires
  • La viabilité de la zone
  • Le relief du terrain
  • La nature du sol

Ces éléments influencent directement les coûts liés aux travaux de fondation et aux infrastructures nécessaires pour la construction.

Les coûts de finition, quant à eux, prennent uniquement en compte les matériaux choisis pour les finitions (revêtements, peintures, sanitaires, etc.). Un mois avant le début des travaux de finition, les coûts de la main-d'œuvre ainsi que les frais de gestion du chantier vous seront facturés séparément, afin de vous offrir une transparence complète sur les dépenses liées à votre projet.


Description

                                                                                  TABLEAU DE SURFACE REZ DE CHAUSSE

DESIGNATIONSURFACE
SEJOUR + SALLE A MANGER34.5 m²
CUISINE8.7 m²
CHAMBRE NOUNOU / INVITE10.4 m²
SDE CHAMBRE NOUNOU3 m²
TOILETTE VISITEUR2.1 m²
TERRASSE 15 m²
COUR ARRIERE10.2 m²
COUR AVAVNT34 m²
DEGAGEMENT1.1 m²
GARAGE28.58 m²

                                                                                  TABLEAU DE SURFACE ETAGE 1

DESIGNATIONSURFACE
CHAMBRE 29.43 m²
SALLE D'EAU CHAMBRE 25 m²
CHAMBRE PRINCIPALE19 m²
SALLE D'EAU CHAMBRE PRINCIPALE6 m²
DRESSING CH P6 m²
BALCON CHAMBRE PRINCIPALE5 m²

                                                                                    TABLEAU DE SURFACE TOITURE TERRASSE

DESIGNATIONSURFACE
CHAMBRE 13 m²
SDE CHAMBRE3 m²
DRESSING CH4.19 m²
BALCON CH3 m²
SEJOUR PRIVE22 m²
BALCON SEJOUR6 m²

Voir d'autres modèles