Modèle pour particulier

C'est une esquisse de plan et non une maison en vente

DIAMANT BLEU
type duplex 5 pièces

33 745 000 FCFA 51 454 €

Je suis intéressé :
  • (+225) 07 77 43 43 43
Gros oeuvre Finition total
33 745 000 FCFA Eco. 15 320 000 FCFA 49 065 000 FCFA
Stand. 19 765 000 FCFA 53 510 000 FCFA

Gros oeuvre (€) Finition (€) total (€)
51 454 € Eco. 23 360 € 74 814 €
Stand. 30 137 € 81 591 €


Description

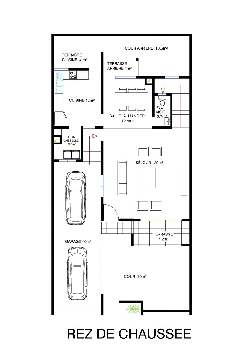
REZ DE CHAUSEE
TERRASSE17.2m²
TERRASSE 24m²
TERRASSE 34m²
SEJOUR39m²
SALLE A MANGER 12.5m²
WC VISITEUR2.7m²
CUISINE12m²
BUANDERIE3.5m²
ETAGE
CHAMBRE 112m²
S.E 13m²
CHAMBRE 213m²
S.E 23.2m²
CHAMBRE 313.4m²
S.E 33.2m²
CHAMBRE PRINCIPALE21m²
DRESSING 6m²
SALLE DE BAIN7.7m²
BALCON7.2m²




Les coûts de construction au gros œuvre que nous proposons ne sont pas définitifs. Ils peuvent être révisés après une visite d’expertise de votre terrain. Le coût final tiendra compte de plusieurs facteurs, tels que :

  • L'accès au terrain
  • Les moyens de transport nécessaires
  • La viabilité de la zone
  • Le relief du terrain
  • La nature du sol

Ces éléments influencent directement les coûts liés aux travaux de fondation et aux infrastructures nécessaires pour la construction.

Les coûts de finition, quant à eux, prennent uniquement en compte les matériaux choisis pour les finitions (revêtements, peintures, sanitaires, etc.). Un mois avant le début des travaux de finition, les coûts de la main-d'œuvre ainsi que les frais de gestion du chantier vous seront facturés séparément, afin de vous offrir une transparence complète sur les dépenses liées à votre projet.


Description

REZ DE CHAUSEE
TERRASSE17.2m²
TERRASSE 24m²
TERRASSE 34m²
SEJOUR39m²
SALLE A MANGER 12.5m²
WC VISITEUR2.7m²
CUISINE12m²
BUANDERIE3.5m²
ETAGE
CHAMBRE 112m²
S.E 13m²
CHAMBRE 213m²
S.E 23.2m²
CHAMBRE 313.4m²
S.E 33.2m²
CHAMBRE PRINCIPALE21m²
DRESSING 6m²
SALLE DE BAIN7.7m²
BALCON7.2m²

Voir d'autres modèles