Modèle pour particulier

C'est une esquisse de plan et non une maison en vente

HAPPYNESS
type Triplex 8 pièces

62 900 000 FCFA 95 909 €

Je suis intéressé :
  • (+225) 07 77 43 43 43
Gros oeuvre Finition total
62 900 000 FCFA Eco. 28 900 000 FCFA 91 800 000 FCFA
Stand. 39 766 200 FCFA 102 666 200 FCFA

Gros oeuvre (€) Finition (€) total (€)
95 909 € Eco. 44 066 € 139 975 €
Stand. 60 635 € 156 544 €


Description

REZ DE CHAUSSEE
JARDIN22m²
GARAGE48m²
TERRASSE 117m²
TERRASSE 24,2m²
SEJOUR28m²
SALLE A MANGER9m²
WC2,2m²
BUANDERIE4,3m²
 CUISINE13,8m²
CHAMBRE NOUNOU12m²
S.E 12,8m²
CHAMBRE AMI12,3m²
S.E 24,1m²
COUR ARRIERE77m²
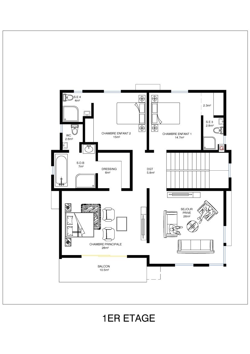
ETAGE 1
  
DGT5,8m²
CHAMBRE PRINCIPALE28m²
DRESSING6m²
S E P9,6m²
BALCON 10,5m²
SEJOUR 226m²
CHAMBRE ENFANT 114,8m²
S E 32,8m²
CHAMBRE ENFANT 215m²
S E 44m²
  
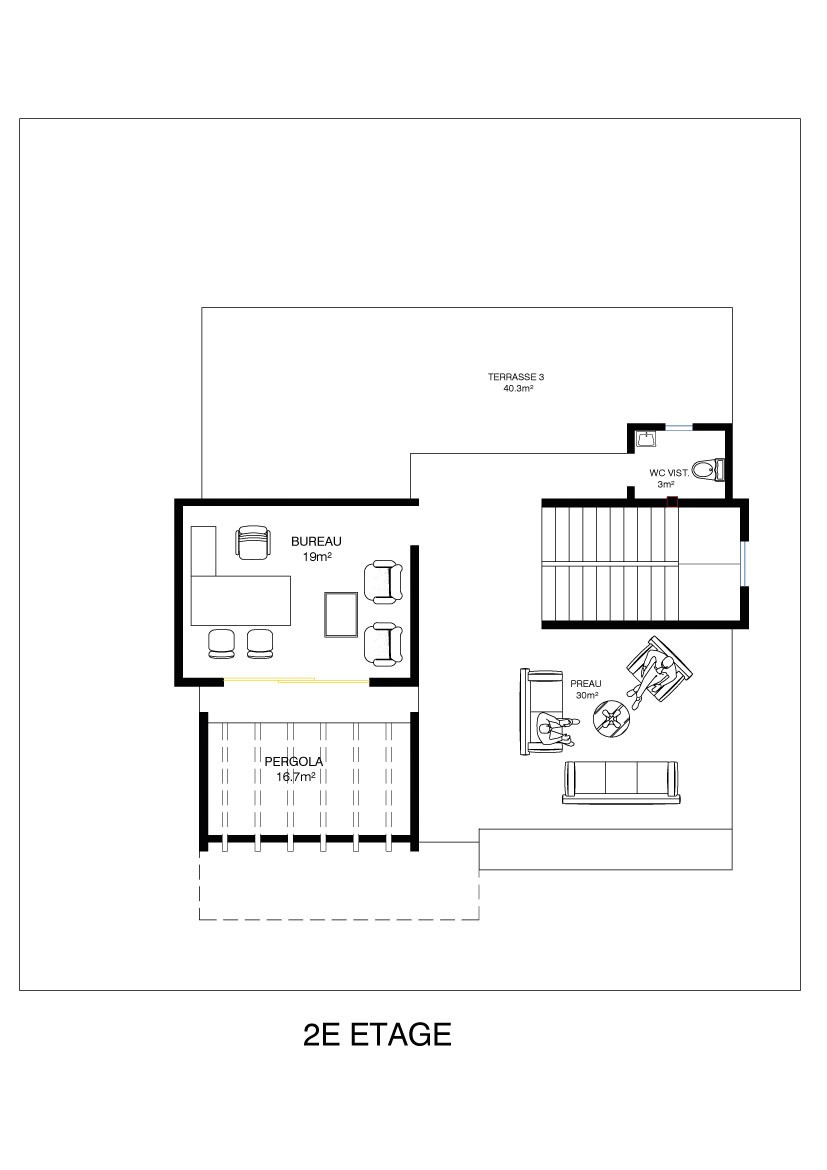
ETAGE 2
WC VISIT 23m²
TERRASSE NON COUVERTE40,3m²
BUREAU19m²
PERGOLA16,7m²
PREAU30m²




Les coûts de construction au gros œuvre que nous proposons ne sont pas définitifs. Ils peuvent être révisés après une visite d’expertise de votre terrain. Le coût final tiendra compte de plusieurs facteurs, tels que :

  • L'accès au terrain
  • Les moyens de transport nécessaires
  • La viabilité de la zone
  • Le relief du terrain
  • La nature du sol

Ces éléments influencent directement les coûts liés aux travaux de fondation et aux infrastructures nécessaires pour la construction.

Les coûts de finition, quant à eux, prennent uniquement en compte les matériaux choisis pour les finitions (revêtements, peintures, sanitaires, etc.). Un mois avant le début des travaux de finition, les coûts de la main-d'œuvre ainsi que les frais de gestion du chantier vous seront facturés séparément, afin de vous offrir une transparence complète sur les dépenses liées à votre projet.


Description

REZ DE CHAUSSEE
JARDIN22m²
GARAGE48m²
TERRASSE 117m²
TERRASSE 24,2m²
SEJOUR28m²
SALLE A MANGER9m²
WC2,2m²
BUANDERIE4,3m²
 CUISINE13,8m²
CHAMBRE NOUNOU12m²
S.E 12,8m²
CHAMBRE AMI12,3m²
S.E 24,1m²
COUR ARRIERE77m²
ETAGE 1
  
DGT5,8m²
CHAMBRE PRINCIPALE28m²
DRESSING6m²
S E P9,6m²
BALCON 10,5m²
SEJOUR 226m²
CHAMBRE ENFANT 114,8m²
S E 32,8m²
CHAMBRE ENFANT 215m²
S E 44m²
  
ETAGE 2
WC VISIT 23m²
TERRASSE NON COUVERTE40,3m²
BUREAU19m²
PERGOLA16,7m²
PREAU30m²

Voir d'autres modèles