Modèle pour particulier

C'est une esquisse de plan et non une maison en vente

GRECKLAND
type duplex 5 pièces

29 500 000 FCFA 44 981 €

Je suis intéressé :
  • (+225) 07 77 43 43 43
Gros oeuvre Finition total
29 500 000 FCFA Eco. 14 500 000 FCFA 44 000 000 FCFA
Stand. 17 500 000 FCFA 47 000 000 FCFA

Gros oeuvre (€) Finition (€) total (€)
44 981 € Eco. 22 109 € 67 091 €
Stand. 26 684 € 71 665 €


Description

                                                                                  TABLEAU DE SURFACE REZ DE CHAUSSE

DESIGNATIONSURFACE
SEJOUR+SALLE A MANGER34 m²
CUISINE 7,5 m²
CHAMBRE9,26 m²
SALLE D'EAU2.15 m²
TOIELETTE VISITEUR3.6 m²
TERRASSE3.75 m²

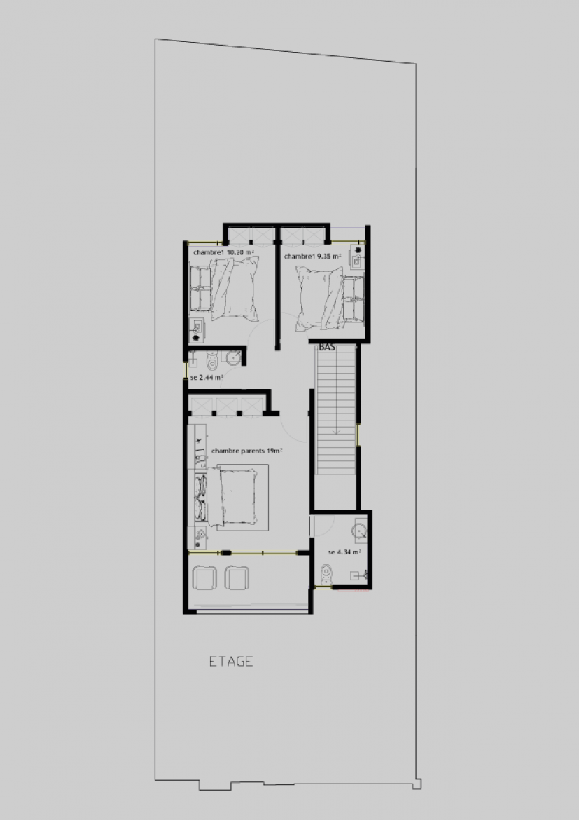
                                                                                  TABLEAU DE SURFACE ETAGE

DESIGNATIONSURFACE
CHAMBRE 210.20 m²
CHAMBRE 39.35  m²
SALLE D'EAU2.44 m²
CHAMBRE PRINCIPALE19 m²
SALLE D'EAU CHAMBRE PRINCIPALE4.34 m²
BALCON 7.61 m²




Les coûts de construction au gros œuvre que nous proposons ne sont pas définitifs. Ils peuvent être révisés après une visite d’expertise de votre terrain. Le coût final tiendra compte de plusieurs facteurs, tels que :

  • L'accès au terrain
  • Les moyens de transport nécessaires
  • La viabilité de la zone
  • Le relief du terrain
  • La nature du sol

Ces éléments influencent directement les coûts liés aux travaux de fondation et aux infrastructures nécessaires pour la construction.

Les coûts de finition, quant à eux, prennent uniquement en compte les matériaux choisis pour les finitions (revêtements, peintures, sanitaires, etc.). Un mois avant le début des travaux de finition, les coûts de la main-d'œuvre ainsi que les frais de gestion du chantier vous seront facturés séparément, afin de vous offrir une transparence complète sur les dépenses liées à votre projet.


Description

                                                                                  TABLEAU DE SURFACE REZ DE CHAUSSE

DESIGNATIONSURFACE
SEJOUR+SALLE A MANGER34 m²
CUISINE 7,5 m²
CHAMBRE9,26 m²
SALLE D'EAU2.15 m²
TOIELETTE VISITEUR3.6 m²
TERRASSE3.75 m²

                                                                                  TABLEAU DE SURFACE ETAGE

DESIGNATIONSURFACE
CHAMBRE 210.20 m²
CHAMBRE 39.35  m²
SALLE D'EAU2.44 m²
CHAMBRE PRINCIPALE19 m²
SALLE D'EAU CHAMBRE PRINCIPALE4.34 m²
BALCON 7.61 m²

Voir d'autres modèles