Modèle pour particulier

C'est une esquisse de plan et non une maison en vente

RUBI
type duplex 6 pièces

44 072 000 FCFA 67 200 €

Je suis intéressé :
  • (+225) 07 77 43 43 43
Gros oeuvre Finition total
44 072 000 FCFA Eco. 20 750 000 FCFA 64 822 000 FCFA
Stand. 26 620 000 FCFA 70 692 000 FCFA

Gros oeuvre (€) Finition (€) total (€)
67 200 € Eco. 31 639 € 98 840 €
Stand. 40 590 € 107 790 €


Description

REZ DE CHAUSSEE
GARAGE30m²
COUR AVANT26m²
TERRASSE 10m²
SEJOUR37m²
WC VISITEUR2.9m²
CHAMBRE NOUNOU15.4m²
S E 13.5m²
COULOIR5.2m²
SALLE A MANGER 17.9m²
CUISINE19.6m²
BUANDERIE4.8m²
TERASSE 4m²
PATIO26m²
COUR 15.5m²
COUR ARRIERE85m²
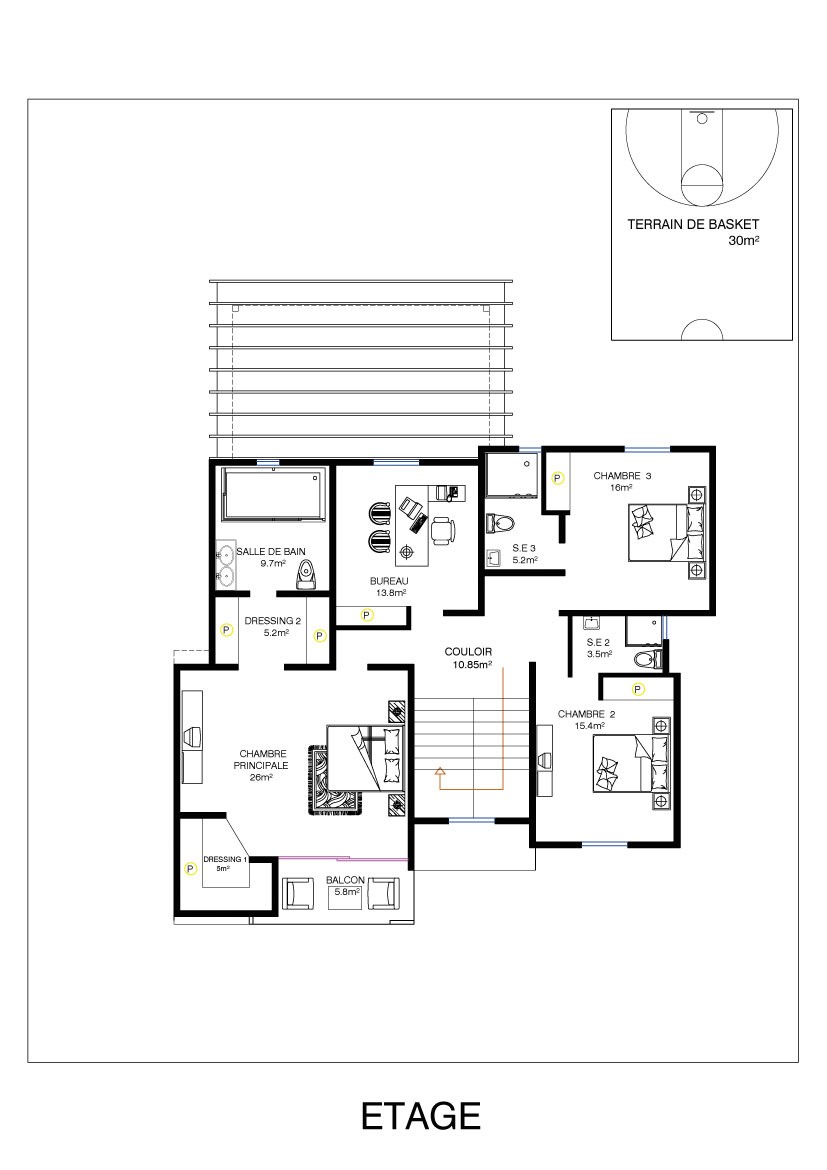
TERRAIN DE BASKET30m²
ETAGE
CHAMBRE PRINCIPALE26m²
DRESSING 15m²
S D B 9.7m²
BALCON 5.8m²
DRESSING 25.8m²
COULOIR10.85m²
CHAMBRE 215.4m²
S E 23.5m²
CHAMBRE 316m²
S E 35.3m²
BUREAU13.8m²




Les coûts de construction au gros œuvre que nous proposons ne sont pas définitifs. Ils peuvent être révisés après une visite d’expertise de votre terrain. Le coût final tiendra compte de plusieurs facteurs, tels que :

  • L'accès au terrain
  • Les moyens de transport nécessaires
  • La viabilité de la zone
  • Le relief du terrain
  • La nature du sol

Ces éléments influencent directement les coûts liés aux travaux de fondation et aux infrastructures nécessaires pour la construction.

Les coûts de finition, quant à eux, prennent uniquement en compte les matériaux choisis pour les finitions (revêtements, peintures, sanitaires, etc.). Un mois avant le début des travaux de finition, les coûts de la main-d'œuvre ainsi que les frais de gestion du chantier vous seront facturés séparément, afin de vous offrir une transparence complète sur les dépenses liées à votre projet.


Description

REZ DE CHAUSSEE
GARAGE30m²
COUR AVANT26m²
TERRASSE 10m²
SEJOUR37m²
WC VISITEUR2.9m²
CHAMBRE NOUNOU15.4m²
S E 13.5m²
COULOIR5.2m²
SALLE A MANGER 17.9m²
CUISINE19.6m²
BUANDERIE4.8m²
TERASSE 4m²
PATIO26m²
COUR 15.5m²
COUR ARRIERE85m²
TERRAIN DE BASKET30m²
ETAGE
CHAMBRE PRINCIPALE26m²
DRESSING 15m²
S D B 9.7m²
BALCON 5.8m²
DRESSING 25.8m²
COULOIR10.85m²
CHAMBRE 215.4m²
S E 23.5m²
CHAMBRE 316m²
S E 35.3m²
BUREAU13.8m²

Voir d'autres modèles