Modèle pour particulier

C'est une esquisse de plan et non une maison en vente

FLOCON DE NEIGE
type Triplex 11 pièces

79 500 000 FCFA 121 220 €

Je suis intéressé :
  • (+225) 07 77 43 43 43
Gros oeuvre Finition total
79 500 000 FCFA Eco. 33 390 000 FCFA 112 890 000 FCFA
Stand. 41 870 000 FCFA 121 370 000 FCFA

Gros oeuvre (€) Finition (€) total (€)
121 220 € Eco. 50 913 € 172 133 €
Stand. 63 843 € 185 063 €


Description

                                                                                  TABLEAU DE SURFACE REZ DE CHAUSSE

DESIGNATIONSURFACE
SEJOUR30.8 m²
SALLE A MANGER26.6 m²
CUISINE12.8 m²
CHAMBRE 113.7 m²
SDE CHAMBRE 13.3 m²
BUANDERIE4.6 m²
TOILETTE VISITEUR2.1 m²
TERRASSE 121.1 m²
TERRASSE 218.7 m²
COUR AVAVNT42.2 m²
COUR ARRIERE47.8 m²
JARDIN11.8 m²
DEGAGEMENT3 m²
GARAGE COUVERT16.50 m²
GARAGE NON COUVERT32.7 m²

                                                                                  TABLEAU DE SURFACE ETAGE 1

DESIGNATIONSURFACE
CHAMBRE 214.7 m²
SDE CHAMBRE 23.3 m²
CHAMBRE 315.50 m²
SDE CHAMBRE 33 m²
BALCON CH 35.6 m²
CHAMBRE 414 .5m²
SDE CHAMBRE 43 m²
BALCON CH 412.9 m²
CHAMBRE PRINCIPALE27.6 m²
SDE CH PRINCIPALE6 m²
DRESSING CH P5.5 m²
BALCON CH P11.7 m²
SDE2.1 m²

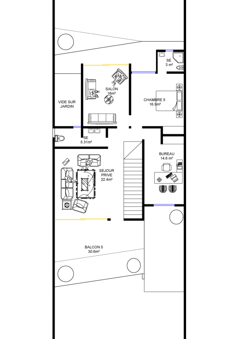
                                                                                  TABLEAU DE SURFACE ETAGE 2

DESIGNATIONSURFACE
CHAMBRE 516.9 m²
SALLE D'EAU CH 53 m²
SEJOUR PRIVE22.4 m²
SALON16 m²
BUREAU14.6 m²
SDE5.31 m²




Les coûts de construction au gros œuvre que nous proposons ne sont pas définitifs. Ils peuvent être révisés après une visite d’expertise de votre terrain. Le coût final tiendra compte de plusieurs facteurs, tels que :

  • L'accès au terrain
  • Les moyens de transport nécessaires
  • La viabilité de la zone
  • Le relief du terrain
  • La nature du sol

Ces éléments influencent directement les coûts liés aux travaux de fondation et aux infrastructures nécessaires pour la construction.

Les coûts de finition, quant à eux, prennent uniquement en compte les matériaux choisis pour les finitions (revêtements, peintures, sanitaires, etc.). Un mois avant le début des travaux de finition, les coûts de la main-d'œuvre ainsi que les frais de gestion du chantier vous seront facturés séparément, afin de vous offrir une transparence complète sur les dépenses liées à votre projet.


Description

                                                                                  TABLEAU DE SURFACE REZ DE CHAUSSE

DESIGNATIONSURFACE
SEJOUR30.8 m²
SALLE A MANGER26.6 m²
CUISINE12.8 m²
CHAMBRE 113.7 m²
SDE CHAMBRE 13.3 m²
BUANDERIE4.6 m²
TOILETTE VISITEUR2.1 m²
TERRASSE 121.1 m²
TERRASSE 218.7 m²
COUR AVAVNT42.2 m²
COUR ARRIERE47.8 m²
JARDIN11.8 m²
DEGAGEMENT3 m²
GARAGE COUVERT16.50 m²
GARAGE NON COUVERT32.7 m²

                                                                                  TABLEAU DE SURFACE ETAGE 1

DESIGNATIONSURFACE
CHAMBRE 214.7 m²
SDE CHAMBRE 23.3 m²
CHAMBRE 315.50 m²
SDE CHAMBRE 33 m²
BALCON CH 35.6 m²
CHAMBRE 414 .5m²
SDE CHAMBRE 43 m²
BALCON CH 412.9 m²
CHAMBRE PRINCIPALE27.6 m²
SDE CH PRINCIPALE6 m²
DRESSING CH P5.5 m²
BALCON CH P11.7 m²
SDE2.1 m²

                                                                                  TABLEAU DE SURFACE ETAGE 2

DESIGNATIONSURFACE
CHAMBRE 516.9 m²
SALLE D'EAU CH 53 m²
SEJOUR PRIVE22.4 m²
SALON16 m²
BUREAU14.6 m²
SDE5.31 m²

Voir d'autres modèles