Modèle pour particulier

C'est une esquisse de plan et non une maison en vente

OPTIMA 100
type Triplex 4 pièces

26 850 000 FCFA 40 940 €

Je suis intéressé :
  • (+225) 07 77 43 43 43
Gros oeuvre Finition total
26 850 000 FCFA Eco. 14 500 000 FCFA 41 350 000 FCFA
Stand. 17 604 000 FCFA 44 454 000 FCFA

Gros oeuvre (€) Finition (€) total (€)
40 940 € Eco. 22 109 € 63 050 €
Stand. 26 842 € 67 783 €


Description

                                                                                  TABLEAU DE SURFACE REZ DE CHAUSSE

DESIGNATIONSURFACE
SEJOUR + SALLE A MANGER27 m²
CUISINE6.2 m²
TOILETTE VISITEUR1.67 m²
TERRASSE8 m²
COUR ARRIERE9 m²
COUR AVAVNT12 m²
GARAGE15 m²

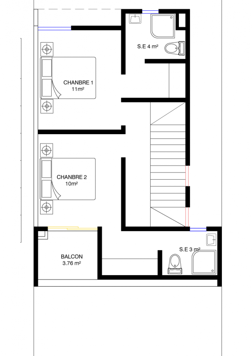
                                                                                  TABLEAU DE SURFACE ETAGE 1

DESIGNATIONSURFACE
CHAMBRE 111 m²
SALLE D'EAU CHAMBRE 14 m²
CHAMBRE 210 m²
SALLE D'EAU CHAMBRE 23 m²
BALCON CHAMBRE 23.76 m²

                                                                                  TABLEAU DE SURFACE ETAGE 2

DESIGNATIONSURFACE
CHAMBRE 317 m²
TOILETTE4 m²




Les coûts de construction au gros œuvre que nous proposons ne sont pas définitifs. Ils peuvent être révisés après une visite d’expertise de votre terrain. Le coût final tiendra compte de plusieurs facteurs, tels que :

  • L'accès au terrain
  • Les moyens de transport nécessaires
  • La viabilité de la zone
  • Le relief du terrain
  • La nature du sol

Ces éléments influencent directement les coûts liés aux travaux de fondation et aux infrastructures nécessaires pour la construction.

Les coûts de finition, quant à eux, prennent uniquement en compte les matériaux choisis pour les finitions (revêtements, peintures, sanitaires, etc.). Un mois avant le début des travaux de finition, les coûts de la main-d'œuvre ainsi que les frais de gestion du chantier vous seront facturés séparément, afin de vous offrir une transparence complète sur les dépenses liées à votre projet.


Description

                                                                                  TABLEAU DE SURFACE REZ DE CHAUSSE

DESIGNATIONSURFACE
SEJOUR + SALLE A MANGER27 m²
CUISINE6.2 m²
TOILETTE VISITEUR1.67 m²
TERRASSE8 m²
COUR ARRIERE9 m²
COUR AVAVNT12 m²
GARAGE15 m²

                                                                                  TABLEAU DE SURFACE ETAGE 1

DESIGNATIONSURFACE
CHAMBRE 111 m²
SALLE D'EAU CHAMBRE 14 m²
CHAMBRE 210 m²
SALLE D'EAU CHAMBRE 23 m²
BALCON CHAMBRE 23.76 m²

                                                                                  TABLEAU DE SURFACE ETAGE 2

DESIGNATIONSURFACE
CHAMBRE 317 m²
TOILETTE4 m²

Voir d'autres modèles