Modèle pour particulier

C'est une esquisse de plan et non une maison en vente

NUAGE DELEGANCE
type Triplex 7 pièces

45 106 770 FCFA 68 778 €

Je suis intéressé :
  • (+225) 07 77 43 43 43
Gros oeuvre Finition total
45 106 770 FCFA Eco. 21 750 000 FCFA 66 856 770 FCFA
Stand. 27 850 000 FCFA 72 956 770 FCFA

Gros oeuvre (€) Finition (€) total (€)
68 778 € Eco. 33 164 € 101 942 €
Stand. 42 465 € 111 243 €


Description

                                                                                  TABLEAU DE SURFACE REZ DE CHAUSSE

DESIGNATIONSURFACE
SEJOUR 116.79 m²
SEJOUR + REPAS 41.35 m²
CUISINE 10.66  m²
CHAMBRE AMIE11.43 m²
TERRASSE4.87 m²
SDE2.90 m²
RANGEMENT 1.27 m²
TOIL1.92 m²
ESCALIER 71.04 m²

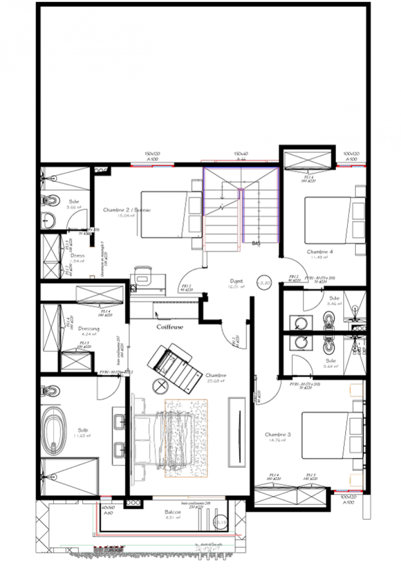
                                                                                  TABLEAU DE SURFACE ETAGE 

DESIGNATIONSURFACE
CH P25.68 m²
SDE CH P11.65 m²
DRESSING CH P4.24 m²
CHAMBRE BUR15.04 m²
DRESSING1.54 m² 
SDE CH BUR3.66 m²
BALCON CH P4.51 m²
CHAMBRE 411.43 m²
SDE CH  43.46 m²
CHAMBRE 314.76 m²
SDE CH 33.64 m²

                                                                                  TABLEAU DE SURFACE DU PREAU 

DESIGNATIONSURFACE
PREAU27.85 m²
SALLE DE PRIERE17.66 m²
TOIT VST3.89 m²
TERRASSE NON COUVERTE45.61 m²




Les coûts de construction au gros œuvre que nous proposons ne sont pas définitifs. Ils peuvent être révisés après une visite d’expertise de votre terrain. Le coût final tiendra compte de plusieurs facteurs, tels que :

  • L'accès au terrain
  • Les moyens de transport nécessaires
  • La viabilité de la zone
  • Le relief du terrain
  • La nature du sol

Ces éléments influencent directement les coûts liés aux travaux de fondation et aux infrastructures nécessaires pour la construction.

Les coûts de finition, quant à eux, prennent uniquement en compte les matériaux choisis pour les finitions (revêtements, peintures, sanitaires, etc.). Un mois avant le début des travaux de finition, les coûts de la main-d'œuvre ainsi que les frais de gestion du chantier vous seront facturés séparément, afin de vous offrir une transparence complète sur les dépenses liées à votre projet.


Description

                                                                                  TABLEAU DE SURFACE REZ DE CHAUSSE

DESIGNATIONSURFACE
SEJOUR 116.79 m²
SEJOUR + REPAS 41.35 m²
CUISINE 10.66  m²
CHAMBRE AMIE11.43 m²
TERRASSE4.87 m²
SDE2.90 m²
RANGEMENT 1.27 m²
TOIL1.92 m²
ESCALIER 71.04 m²

                                                                                  TABLEAU DE SURFACE ETAGE 

DESIGNATIONSURFACE
CH P25.68 m²
SDE CH P11.65 m²
DRESSING CH P4.24 m²
CHAMBRE BUR15.04 m²
DRESSING1.54 m² 
SDE CH BUR3.66 m²
BALCON CH P4.51 m²
CHAMBRE 411.43 m²
SDE CH  43.46 m²
CHAMBRE 314.76 m²
SDE CH 33.64 m²

                                                                                  TABLEAU DE SURFACE DU PREAU 

DESIGNATIONSURFACE
PREAU27.85 m²
SALLE DE PRIERE17.66 m²
TOIT VST3.89 m²
TERRASSE NON COUVERTE45.61 m²

Voir d'autres modèles