Modèle pour particulier

C'est une esquisse de plan et non une maison en vente

OPULENTIS
type duplex 8 pièces

53 136 000 FCFA 81 021 €

Je suis intéressé :
  • (+225) 07 77 43 43 43
Gros oeuvre Finition total
53 136 000 FCFA Eco. 23 580 000 FCFA 76 716 000 FCFA
Stand. 28 454 000 FCFA 81 590 000 FCFA

Gros oeuvre (€) Finition (€) total (€)
81 021 € Eco. 35 954 € 116 975 €
Stand. 43 386 € 124 407 €


Description

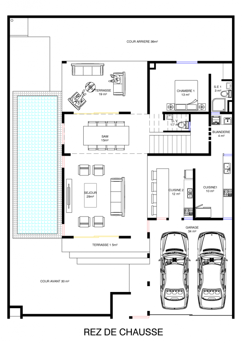
                                                                                  TABLEAU DE SURFACE REZ DE CHAUSSE

DESIGNATIONSURFACE
SEJOUR29 m²
SALLE A MANGER15 m²
CUISINE 110 m²
CUISINE 212 m²
CHAMBRE 113 m²
SDE CHAMBRE 13 m²
TOILETTE VISITEUR2.1 m²
BUANDERIE4 m²
TERRASSE 15 m²
TERRASSE 219 m²
COUR ARRIERE36 m²
COUR AVAVNT30 m²
GARAGE34 m²

                                                                                  TABLEAU DE SURFACE ETAGE 

DESIGNATIONSURFACE
CHAMBRE 212 m²
SDE  CHAMBRE 23.3 m²
CHAMBRE 314 m²
SDE CH 33.3 m²
SEJOUR PRIVE24 m²
CHAMBRE 413 m²
SDE CH 43 m²
BALCON CH 45.3 m²
CHAMBRE PRINCIPALE21 m²
SDE CH P10 m²
DRESSING CH P7 m²
BUREAU7 m²
BALCON CH P15 m²




Les coûts de construction au gros œuvre que nous proposons ne sont pas définitifs. Ils peuvent être révisés après une visite d’expertise de votre terrain. Le coût final tiendra compte de plusieurs facteurs, tels que :

  • L'accès au terrain
  • Les moyens de transport nécessaires
  • La viabilité de la zone
  • Le relief du terrain
  • La nature du sol

Ces éléments influencent directement les coûts liés aux travaux de fondation et aux infrastructures nécessaires pour la construction.

Les coûts de finition, quant à eux, prennent uniquement en compte les matériaux choisis pour les finitions (revêtements, peintures, sanitaires, etc.). Un mois avant le début des travaux de finition, les coûts de la main-d'œuvre ainsi que les frais de gestion du chantier vous seront facturés séparément, afin de vous offrir une transparence complète sur les dépenses liées à votre projet.


Description

                                                                                  TABLEAU DE SURFACE REZ DE CHAUSSE

DESIGNATIONSURFACE
SEJOUR29 m²
SALLE A MANGER15 m²
CUISINE 110 m²
CUISINE 212 m²
CHAMBRE 113 m²
SDE CHAMBRE 13 m²
TOILETTE VISITEUR2.1 m²
BUANDERIE4 m²
TERRASSE 15 m²
TERRASSE 219 m²
COUR ARRIERE36 m²
COUR AVAVNT30 m²
GARAGE34 m²

                                                                                  TABLEAU DE SURFACE ETAGE 

DESIGNATIONSURFACE
CHAMBRE 212 m²
SDE  CHAMBRE 23.3 m²
CHAMBRE 314 m²
SDE CH 33.3 m²
SEJOUR PRIVE24 m²
CHAMBRE 413 m²
SDE CH 43 m²
BALCON CH 45.3 m²
CHAMBRE PRINCIPALE21 m²
SDE CH P10 m²
DRESSING CH P7 m²
BUREAU7 m²
BALCON CH P15 m²

Voir d'autres modèles