Modèle pour particulier

C'est une esquisse de plan et non une maison en vente

ORCHIDEES
type duplex 5 pièces

43 200 000 FCFA 65 871 €

Je suis intéressé :
  • (+225) 07 77 43 43 43
Gros oeuvre Finition total
43 200 000 FCFA Eco. 17 820 000 FCFA 61 020 000 FCFA
Stand. 22 464 000 FCFA 65 664 000 FCFA

Gros oeuvre (€) Finition (€) total (€)
65 871 € Eco. 27 172 € 93 042 €
Stand. 34 253 € 100 124 €


Description

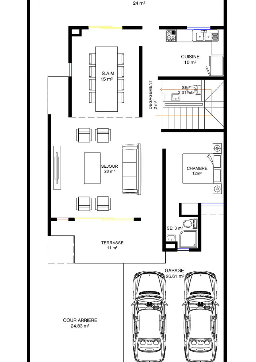
                                                                                  TABLEAU DE SURFACE REZ DE CHAUSSE

DESIGNATIONSURFACE
SEJOUR28 m²
SALLE A MANGER15 m²
CUISINE10 m²
CHAMBRE12 m²
SDE CHAMBRE3 m²
TOILETTE VISIT2.31 m²
TERRASSE11 m²
COUR ARRIERE24 m²
COUR AVAVNT24.83 m²
DEGAGEMENT2 m²
GARAGE26.61 m²

                                                                                  TABLEAU DE SURFACE ETAGE 

DESIGNATIONSURFACE
CHAMBRE 115 m²
SALLE D'EAU CHAMBRE 13.2 m²
BALCON2 m²
CHAMBRE PRINCIPALE23 m²
SALLE D'EAU CHAMBRE PRINCIPALE5 m²
BALCON CHAMBRE PRINCIPALE7 m²
BALCON7 m²

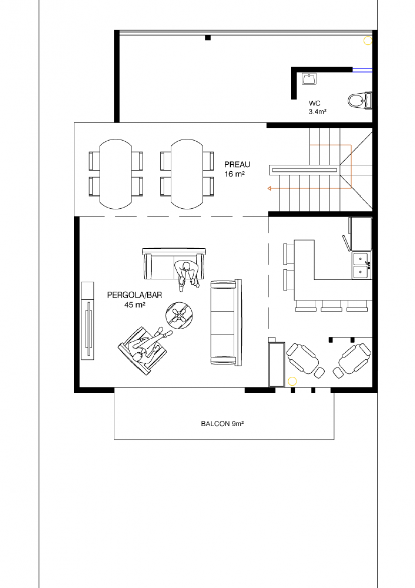
                                                                                   TABLEAU DE SURFACE TOITURE TERRASSE

DESIGNATIONSURFACE
PERGOLA + BAR45 m²
TOILETTE3.4 m²
PREAU16 m²
BALCON9 m²




Les coûts de construction au gros œuvre que nous proposons ne sont pas définitifs. Ils peuvent être révisés après une visite d’expertise de votre terrain. Le coût final tiendra compte de plusieurs facteurs, tels que :

  • L'accès au terrain
  • Les moyens de transport nécessaires
  • La viabilité de la zone
  • Le relief du terrain
  • La nature du sol

Ces éléments influencent directement les coûts liés aux travaux de fondation et aux infrastructures nécessaires pour la construction.

Les coûts de finition, quant à eux, prennent uniquement en compte les matériaux choisis pour les finitions (revêtements, peintures, sanitaires, etc.). Un mois avant le début des travaux de finition, les coûts de la main-d'œuvre ainsi que les frais de gestion du chantier vous seront facturés séparément, afin de vous offrir une transparence complète sur les dépenses liées à votre projet.


Description

                                                                                  TABLEAU DE SURFACE REZ DE CHAUSSE

DESIGNATIONSURFACE
SEJOUR28 m²
SALLE A MANGER15 m²
CUISINE10 m²
CHAMBRE12 m²
SDE CHAMBRE3 m²
TOILETTE VISIT2.31 m²
TERRASSE11 m²
COUR ARRIERE24 m²
COUR AVAVNT24.83 m²
DEGAGEMENT2 m²
GARAGE26.61 m²

                                                                                  TABLEAU DE SURFACE ETAGE 

DESIGNATIONSURFACE
CHAMBRE 115 m²
SALLE D'EAU CHAMBRE 13.2 m²
BALCON2 m²
CHAMBRE PRINCIPALE23 m²
SALLE D'EAU CHAMBRE PRINCIPALE5 m²
BALCON CHAMBRE PRINCIPALE7 m²
BALCON7 m²

                                                                                   TABLEAU DE SURFACE TOITURE TERRASSE

DESIGNATIONSURFACE
PERGOLA + BAR45 m²
TOILETTE3.4 m²
PREAU16 m²
BALCON9 m²

Voir d'autres modèles